HOPE ON BROADWAY
HOUSING TYPE — PERMANENT SUPPORTIVE (IN PROGRESS)
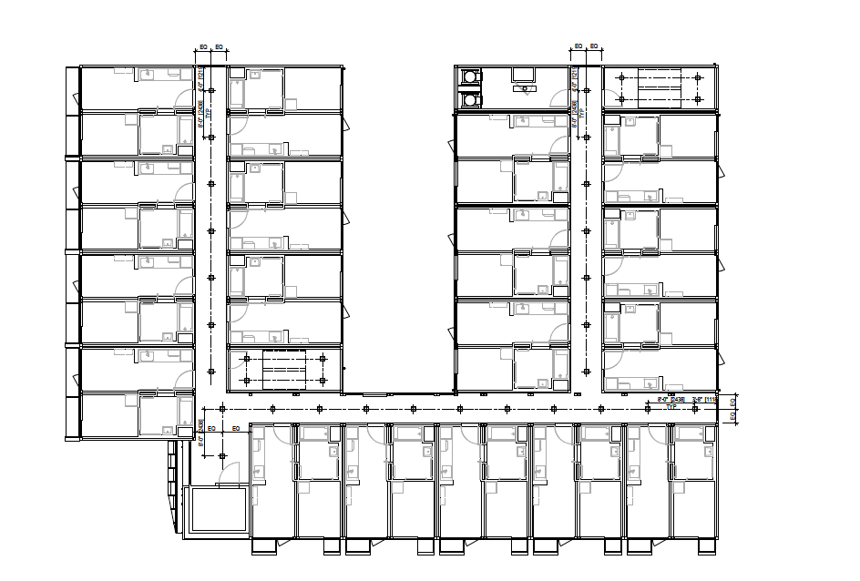
HBG provided their proprietary prefab steel modules for the design, fabrication and construction of this five-story, multifamily apartment building. Designated as Permanent Supportive Housing, the project provides fully ADA-compliant housing. HBG collaborated with developer Hope Street Development Group/KTGY to bring this project to reality. Currently in Plan Check Review.
LOCATION
5138 South Broadway
Los Angeles, CA 90037
CLIENT Hope Street Development, LLC
DENSITY 190 du/ac
UNIT PLAN SIZES 320-480 sq. ft.
TOTAL UNITS 96 du
SITE AREA 0.49 ac
STORIES 5
PARKING
CONSTRUCTION TYPE IIB
PROPRIETARY MODULES 176
COMPLETION DATE Winter 2020
